手机版 | 登陆 | 注册 | 留言 | 设首页 | 加收藏
当前位置: 网站首页 > 资讯 > 文章 当前位置: 资讯 > 文章

宝山将新建一个幼儿园 有沙坑、跑道还有共用游戏场地

时间:2020-02-10    点击: 次    来源:不详    作者:佚名 - 小 + 大

  原标题:宝山这里要新建一个幼儿园啦,有沙坑、戏水、跑道还有共用游戏场地~

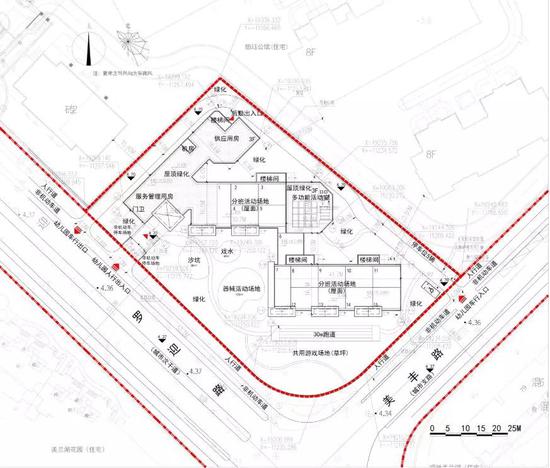
  好消息!好消息!宝山这里要新建一个幼儿园啦~总建筑面积达到66482.5㎡!快来看看是不是在你家附近?

  项目详情

  建设项目:罗店新镇D1-3地块幼儿园新建工程

  建设性质:教育设施

  建设地点:东至D1-2地块,西至罗迎路,南至美丰路,北至D1-2地块。

注:本项目规划总平面图以主管部门批准的最终方案为准注:本项目规划总平面图以主管部门批准的最终方案为准

  技术经济指标

  总建筑面积:66482.5㎡

  绿地总面积:2235.24㎡

  机动车停车泊位数:6

1 2 3 下一页

上一篇:上海评估了所有政务便利店 平均分81.4优良率近6成

下一篇:教育部前沿科学中心立项建设名单:上海交大、华理入选

港ICP备16017555号  |   QQ:443594666  |  地址:北京市西城区广安门内大街  |  电话:13999999999  |