手机版 | 登陆 | 注册 | 留言 | 设首页 | 加收藏
当前位置: 网站首页 > 资讯 > 文章 当前位置: 资讯 > 文章

宝山将新建一个幼儿园 有沙坑、跑道还有共用游戏场地

时间:2020-02-10    点击: 次    来源:不详    作者:佚名 - 小 + 大

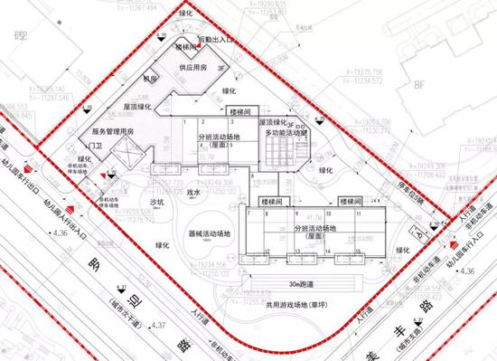
  设计工程平面示意图

  设计工程平面示意图中,这个新建幼儿园将配备86㎡的沙坑,48㎡的戏水,150㎡的器械活动场地,还有30㎡的跑道以及一个在草坪上的共用游戏场地~

注:本项目规划总平面图以主管部门批准的最终方案为准注:本项目规划总平面图以主管部门批准的最终方案为准上一页 1 2 3 下一页

上一篇:上海评估了所有政务便利店 平均分81.4优良率近6成

下一篇:教育部前沿科学中心立项建设名单:上海交大、华理入选

港ICP备16017555号  |   QQ:443594666  |  地址:北京市西城区广安门内大街  |  电话:13999999999  |